液氮低溫補液系統是用于超低溫所有超低溫應用用途的液氮補液場景,為設備或液氮罐體或系統補充液氮使用。其中,
冷卻使用的液氮罐體可以定制。用于補液的液氮罐體也可以根據使用情況選擇大小。液氮低溫補液系統應用范圍廣,
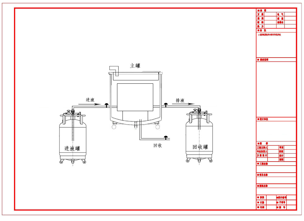
使用場景靈活,即可以單罐補液,又可以雙罐進行不間斷補液,還可以加入回收罐, 進行液氮回收等操作方式。
結構原理
液氮低溫補液系統
一般由一臺或兩臺補液罐組成,如果為兩臺補液罐則系統設計為兩臺輪換不間斷補液模式,該模式需要由控制系統控制,實施不間斷的長時,液氮補充。其它部分結構為輸液管路,輸液管路根據客戶需求配套安裝,如果客戶的設備或者罐體有回收液氮的需求,還可以按照一臺液氮回收罐,根據系統需求使用,控制系統根據情況配置。
客戶還可以還可根據要求配置:液位監控、溫度監控、系統控制自動補液、自動排液等自動化集中控制功能。
產品優勢
液氮低溫補液系統是一套液氮自動化為一體的液氮補液系統,具有高度自動化的優勢,是液氮補液和液氮低溫制冷的常用系統。具有節省液氮,可實現自動補液,
設計自由化,適配各種使用場景等。
對比市場上能實現該功能的其他產品,這套產品系統的優勢因其模塊化的設計理念,根據使用場景就可以搭建出一套液氮低溫補液,所以該系統是市場上具有安全性的液氮低溫補液系統,比繁瑣的設計要易用和方便。
特點:
1. 安全穩定:液氮補液系統配備了溫度報警、液位報警、泄漏報警等裝置可自動切斷或遠程提醒功能。
2. 操作簡單:操作簡單,便于維護
3. 精確控制:液氮低溫補液系統還具備高效的補液速度和精準的溫度控制誤差將至±0.1
4. 數據實時反饋:數據可遠程反饋曲線(溫度、壓力、液位、流量)
5. 智能自動化補液可根據需求設計
案例設計

常溫氮氣供應、液氮供應、液氮流量控制供應等。這套系統可以應用于不同的用途場所,采用自增壓液氮罐的智能化液氮冷卻系統、儲存型液氮罐的補液系統和監控系統等。

兩臺液氮罐一臺補液一臺回收,實現不間斷循環供液

圖紙設計

主罐3d效果圖
應用
液氮補液系統在現代物理學研究、材料科學和工程、生命科學和醫學研究、食品加工和儲存以及工業制造業等不同領域中均運用廣泛。